Vállalkozók figyelem, kiváló lehetőség Eleken!

16904 Nyomtatás Ajánlás Facebook

Vállalkozók figyelem, kiváló lehetőség Eleken!

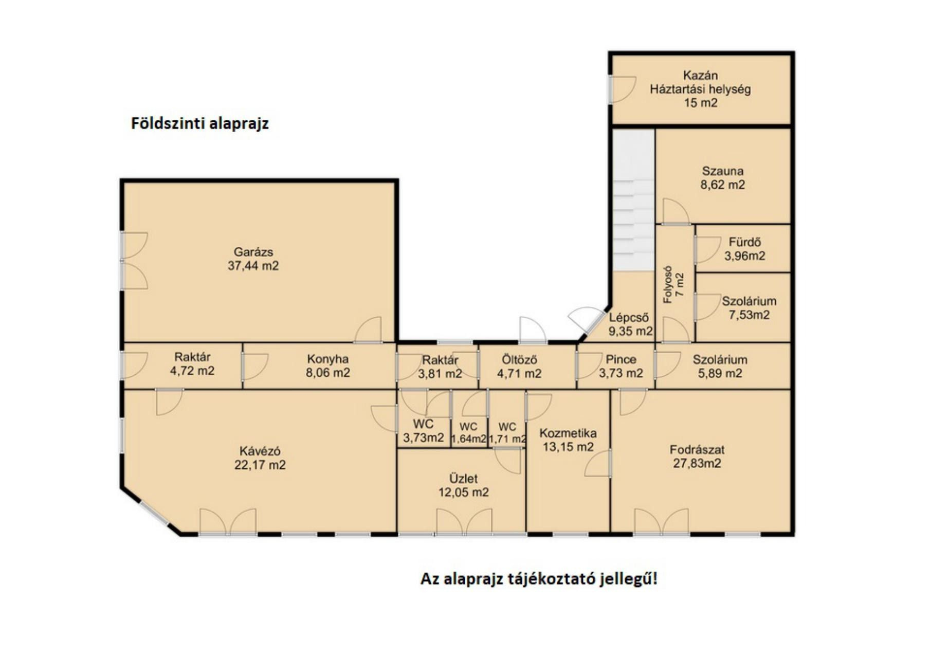
Eladásra kínálok Elek város központjában egy 2012 évben épült, két szintes épület komplexumot. Az ingatlan kialakítása során a földszinti részen egy presszó, kozmetika, fodrászat, szolárium, szauna és több tároló, mellékhelység, fürdőszoba lett tervezve. Az ingatlan tetőtéri részére pedig a látványtervek szerint egy közel 200 m2-es lakóépületet terveztek.
Az ingatlan Elek város főterén található, ezért a fenti üzletek működtetésének szempontjából kiváló az elhelyezkedése.
Az épületben a fűtéscsövek, vízvezetékek és az áramvezetékek is ki lettek építve a földszinti részen.

Az ingatlan hasznos területe: 390 m2.
A telek összesen: 440 m2.

Az ingatlanhoz meg vannak a tervek és látványtervek, amelyeket komoly érdeklődés esetén ismertetni tudom.

Az ingatlan megtekintése, illetve az ingatlannal kapcsolatos kérdés esetén állok rendelkezésére a hét bármely napján. Tel.: 06704574392

Szentléleki Tamás
PRÉMIUM

Szentléleki Tamás

6 éve a Városi Ingatlaniroda tagja
Ingatlanértékesítő
Gyula
+36 (70) 457 4392
Észrevétel a hirdetéssel kapcsolatban
Egy ingatlanos naplója