Tágas terek, nagy kerttel, jó helyen

7484 Nyomtatás Ajánlás Facebook

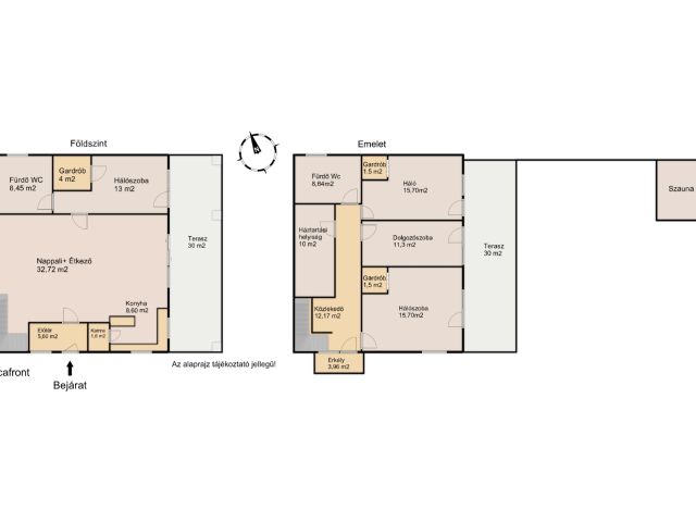
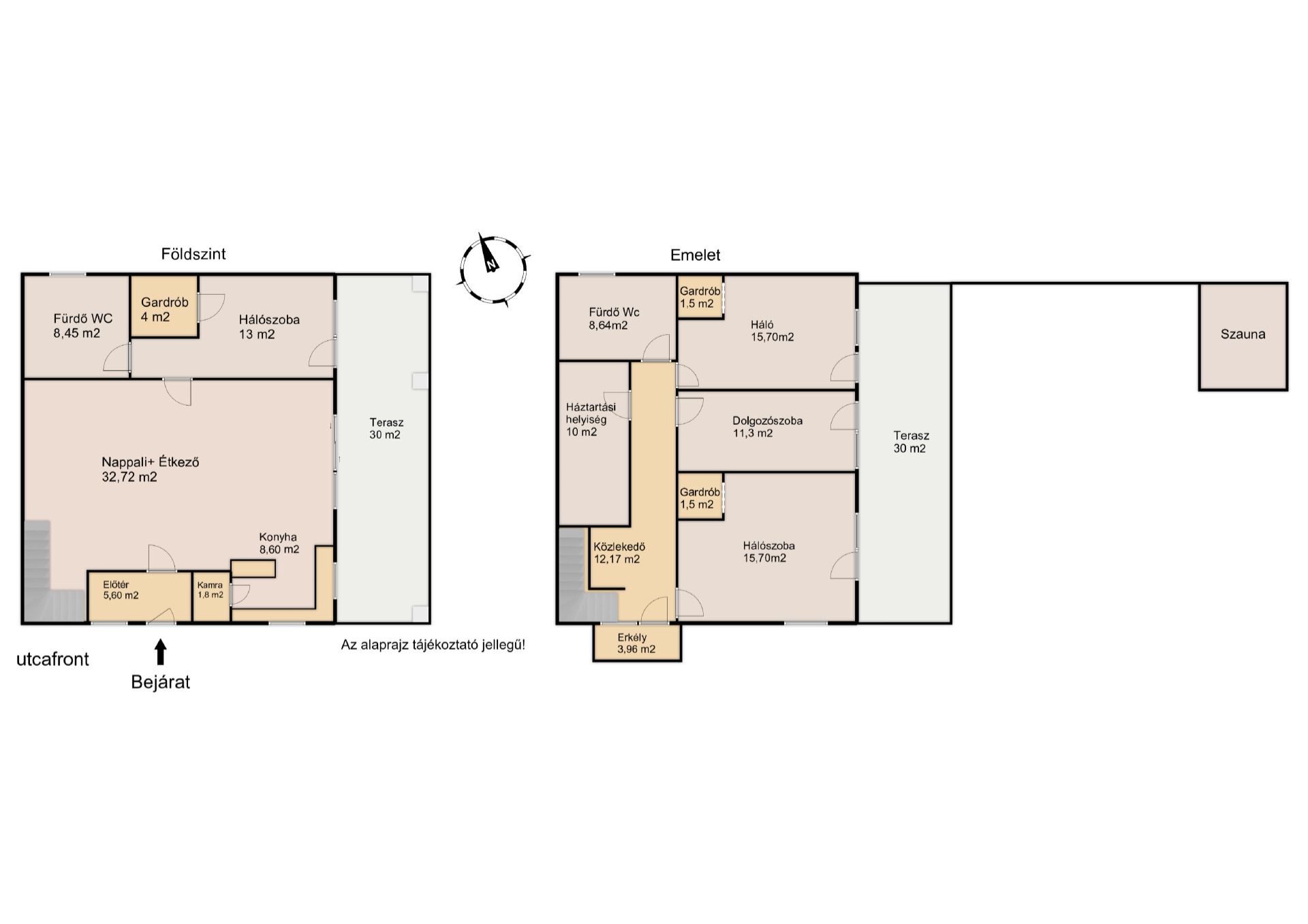
Eladó Győr, Révfalu városrészben, a kedvelt kisbácsai rész közelében egy újszerű tágas családi ház, amely ~174 m²-es lakótérrel és egy 755 m²-es telekkel rendelkezik. Ha nyugodt, családi házas környezetben szeretne élni, ez az ingatlan ideális választás lehet Önnek!

A ház 2016-ban épült, kiváló minőségű anyagok felhasználásával. Az alsó szinten egy tágas nappali található, amely egy légtérben van a modern konyhával és étkezővel. Itt kapott helyet továbbá egy gardróbbal ellátott hálószoba és egy fürdőszoba. A nappaliból nagy üvegajtón keresztül juthat ki a teraszra és a kertbe. Ahol egy kinti szauna helyiség is található.

Az emeleti szinten további 2 hálószoba, egy dolgozószoba, háztartási helyiség, valamint egy második fürdőszoba található.
A háztartási helyiségben helyezték el a Sanier Duval kondenzációs gázkazánt és az emelet, valamint a földszint külön termosztáttal irányítható, így a fűtés külön szabályozható. A szobák teljes értékűek, mivel a tetőszerkezet nem csökkenti a belmagasságot. Az emeleti 30 m2-es teraszról gyönyörű kilátás nyílik a környező területre.

A nappaliban egy kandalló biztosítja a kellemes hangulatot, de cserépkályha kialakítására is van lehetőség. A ház kényelmi funkciókkal is rendelkezik: elektromos redőnyökkel és szúnyoghálóval van felszerelve. Az udvarban egy kétállásos parkoló is kialakításra került, így a parkolás is kényelmes és biztonságos.

Hívjon akár hétvégén is: 06-30-7830075
Keressen bizalommal, hogy személyesen is megtekinthesse ezt a páratlan ingatlant!

A jelen hirdetésben rögzített, az ingatlannal kapcsolatos adatok, információk a Megbízó tájékoztatása alapján kerültek meghatározásra. Az adásvétel során teljeskörű lebonyolítást vállalunk díjmentes jogi tanácsadással, bankfüggetlen hitelügyintézéssel!

Velki Nagy Viktória

Velki Nagy Viktória

5 éve a Városi Ingatlaniroda tagja
Ingatlanértékesítő, hiteltanácsadó
Győr
+36 (30) 783 0075
Észrevétel a hirdetéssel kapcsolatban
Egy ingatlanos naplója