Éttermet, vagy kézműves pékséget nyitnál? Itt a lehetőség.

59 Nyomtatás Ajánlás Facebook

Kiadó vendéglátó egység Zamárdi-felsőn – 100 méterre a Balatontól!

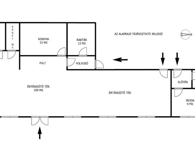
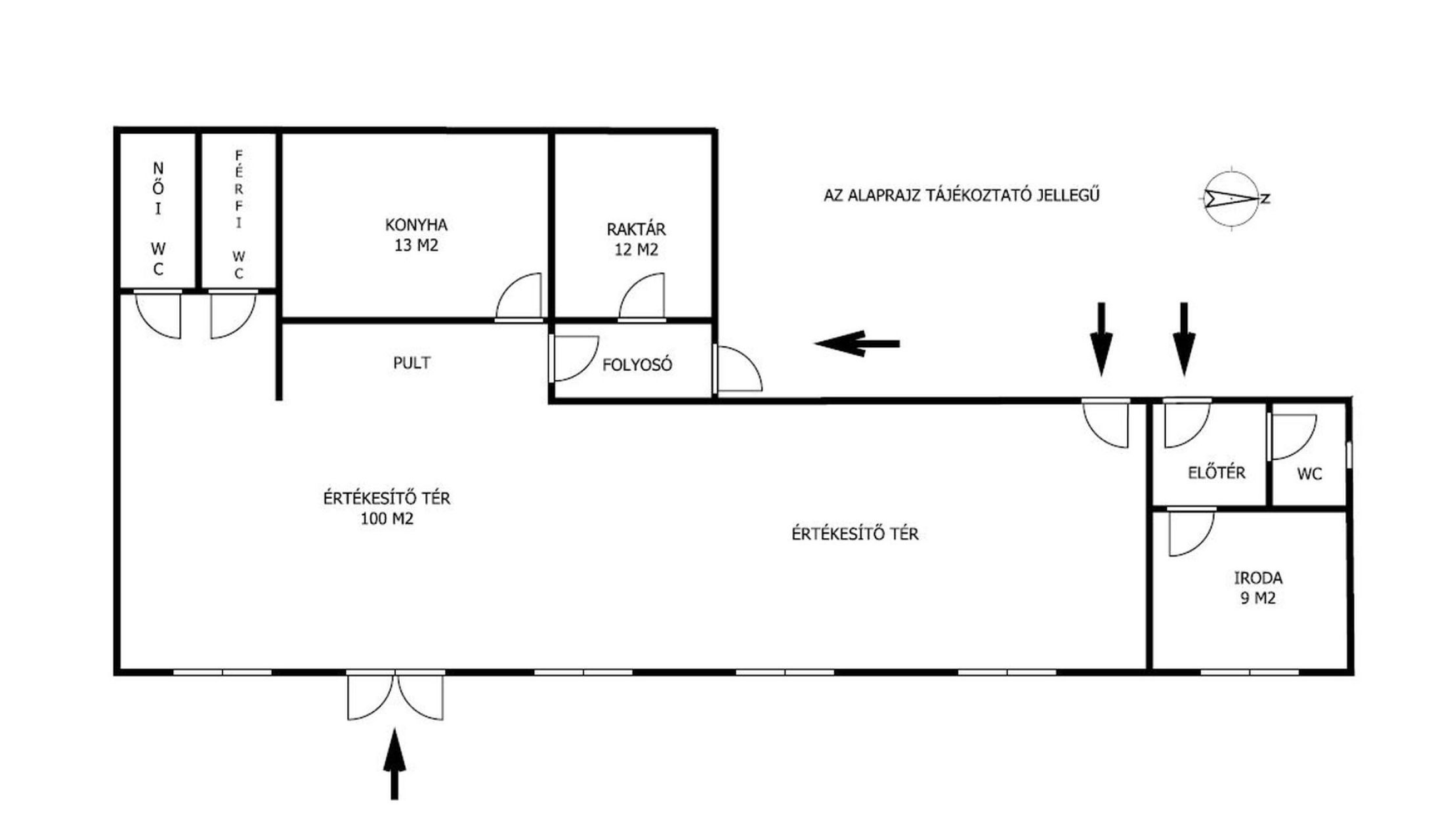
Kiadó Zamárdi-felsőn, a Balatontól mindössze 100 méterre, egy 160 m²-es vendéglátó egység, amely ideális választás lehet kézműves pékség, pizzéria, kávézó vagy street food koncepció megvalósítására.

Az ingatlan 100 m²-es tágas vendégtérrel rendelkezik, amely jól alakítható különböző vendéglátó elképzelésekhez. A 218 m²-es telken elhelyezkedő üzlet előtt kb. 30 m²-es terasz található, amely a nyári szezonban jelentős forgalmat és bevételt generálhat.

Főbb jellemzők:

160 m² alapterület
100 m² világos, jól kihasználható vendégtér
külön konyha és tárolók
többfunkciós helyiség (iroda / pihenő)
átlagos állapot – saját arculatra formálható
teraszos vendéglátás lehetősége

Miért ideális vendéglátásra?

100 méterre a Balatontól – folyamatos nyári gyalogos forgalom
- kiváló lokáció pékség + pizza + kávé kombinációhoz
- terasz → gyorsabb pörgés, nagyobb bevétel
- többféle koncepció egyszerre is működhet

Rugalmas együttműködés
- Akár közös üzemeltetés is lehetséges megfelelő koncepció esetén
- Indulásban segítséget nyújtunk – tapasztalattal és gyakorlati támogatással
- hosszú távú együttműködésben gondolkodunk

Ne maradjon le róla!

Hívjon most, és beszéljük át az elképzelését – egy jó koncepcióval ez a hely gyorsan sikeressé tehető!

A bérleti szerződés közjegyzői okiratba foglalással készül. Három havi kaució szükséges.

Catering unit for rent in Zamárdi-felső – 100 meters from Lake Balaton!

For rent in Zamárdi-felső, just 100 meters from Lake Balaton, a 160 m² catering unit, which can be an ideal choice for the implementation of a craft bakery, pizzeria, café or street food concept.

The property has a spacious 100 m² guest space, which can be easily adapted to various catering concepts. In front of the shop, located on a 218 m² plot, there is an approx. 30 m² terrace, which generates significant traffic and income in the summer season.

Main features:

160 m² floor area
100 m² bright, easy-to-use guest space
separate kitchen and storage
multifunctional room (office / rest room)
average condition – can be shaped to your own image
possibility of terrace catering

Why is it ideal for catering?

100 meters from Lake Balaton – continuous summer foot traffic
- excellent location for a bakery + pizza + coffee combination
- terrace → faster turnover, higher income
- several concepts work

Flexible cooperation
- Even joint operation is possible with the right concept
- We provide help with the start-up – with experience and practical support
- we think in terms of long-term cooperation

Don't miss out!

Call now and let's discuss the idea – with a good concept this place can be made successful quickly!

The lease agreement is drawn up by notarizing. Three months' deposit is required.

Dér Attila

Dér Attila

Ingatlanértékesítő
Siófok
+36 (30) 339 6019
Észrevétel a hirdetéssel kapcsolatban
Egy ingatlanos naplója